
O inwestycji
To doskonała lokalizacja , kilka minut jazdy od Nowego Sącza . Na naszym osiedlu oferujemy dwupoziomowe domy w zabudowie bliźniaczej , każdy o powierzchni 76 m2 z dwoma miejscami parkingowymi oraz przynależnym ogródkiem 200 m2 .
To doskonałe miejsce nie tylko to mieszania ale również i wypoczynku ponieważ niedaleko znajduje się rzeka Dunajec oraz ścieżka rowerowa .
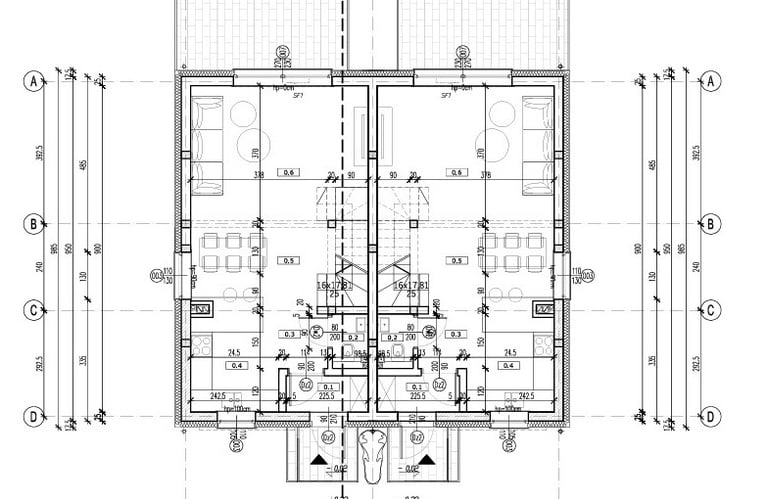
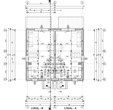
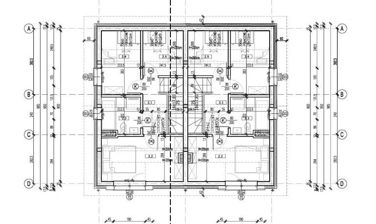
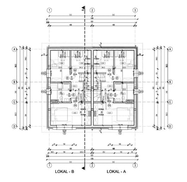
RZUT LOKALI
PARTER




Osiedle domków jednorodzinnych dwulokalowych to inwestycja zlokalizowana jest w Chełmcu (Świniarsko).


PIĘTRO
Nasz realizowany projekt ROK 2025/26




Materiały dostarczają nam firmy takie jak ROLBUD , HONER , DELTA , ROYAL










ILOŚĆ DOSTĘPNYCH LOKALI
Lokal A Powierzchnia: 76,60 m2 Cena: 540.000 tys. Status: DOSTĘPNE
Lokal B Powierzchnia: 76,60 m2 Status: REZERWACJA
Lokal C Powierzchnia: 76,60 m2 Cena: 540.000 tys. Status: DOSTĘPNE
Lokal D Powierzchnia: 76,60 m2 Status: REZERWACJA
Lokal F Powierzchnia: 76,60 m2 Cena: 540.000 tys. Status: DOSTĘPNE
Lokal G Powierzchnia: 76,60 m2 Cena: 540.000 tys. Status: DOSTĘPNE
Lokal H Powierzchnia: 76,60 m2 Cena: 540.000 tys. Status: DOSTĘPNE
Lokal E Powierzchnia: 76,60 m2 Cena: 540.000 tys. Status: DOSTĘPNE
Opis nieruchomości
DOM BLIŹNIAK
Zapraszamy do skorzystania z oferty wpłaty 5 % w przedsprzedaży nowoczesnych domów w zabudowie bliźniaczej, zlokalizowanych w dzielnicy Chełmiec / Świniarsko .
To zdecydowanie propozycja dla osób ceniących jakość, komfort i bezpieczeństwo.
Szczegóły nieruchomości i rozkład nieruchomości :
Powierzchnia domu: 76 m² pow. użytkowej ( 80 m² )
Dodatkowo : 15 m² strych
Ogródek: około 200 m²
Miejsce postojowe : 2 miejsce postojowe przy budynku
PARTER
1. Wiatrołap
2. WC
3. Korytarz
4. Kuchnia
5. Jadalnia
6. Pokój dzienny
PIĘTRO I
1. Komunikacja + kl. schodowa
2. Pokój
3. Łazienka
4. Pokój
5. Pokój
Dodatkowo pomieszczenie strychowe nad piętrem .
Standard wykonania i udogodnienia :
- Elegancki, wygodny i funkcjonalny układ domu
- Dom w cenie mieszkania, w dogodnej lokalizacji
- Brak czynszu oszczędność 300-700 zł miesięcznie w porównaniu do mieszkania w bloku
- Odrębna własność
- Bardzo niskie koszty utrzymania , wynikające z zastosowania energooszczędnych materiałów , okna 3 szybowe , elewacja ocieplona styropianem Austrotherm
- Monitoring oraz system domofonowy
- Osiedle ogrodzone
- Prywatny ogródek w cenie, idealne miejsce do relaksu
- Bezpieczeństwo wszystkie ogródki ogrodzone
- Oszczędność - kupujący nie płaci podatku od umów cywilnoprawnych
na sprzedaż wystawiana faktura VAT
-Możliwość aranżacji przestrzeni
-W budynku brak części wspólnych każdy dom posiada oddzielne wejście
Dodatkowo w cenie:
- Instalacja pod fotowoltaikę
- Światłowód
Nie czekaj - zarezerwuj swój wymarzony dom już dziś - to NAJLEPSZA OFERTA BLIŹNIAKÓW NA RYNKU!
Termin realizacji przewidziano na LIPIEC 2026roku.
Standard wykonania : stan deweloperski ( w cenie wykończenie tarasu, podjazdu i ogrodzenia, przyłączy )
Wykonawcą inwestycji jest firma Mikulec Nieruchomości, 10-letnie doświadczenie gwarantuje najwyższy standard realizacji. Dzięki wcześniejszej współpracy mamy pewność, że inwestycja spełni oczekiwania nawet najbardziej wymagających klientów.
Cena : 540 000 PLN brutto
Nabywca nie płaci podatku PCC 2% (oszczędność 9800 PLN dla kupującego)
Gwarancja stałej ceny!
Kupujący w przedsprzedaży mają gwarancję stałej ceny, co może być korzystne w okresach wzrostu cen na rynku nieruchomości .
Wsparcie w finansowaniu:
Jako profesjonalna firma oferujemy kompleksową pomoc w uzyskaniu finansowania.
Twój nowy dom czeka na Ciebie - miejsce, które łączy nowoczesność, bezpieczeństwo i komfort.
Zadzwoń lub napisz !
Zapraszam do kontaktu w celu omówienia szczegółów oferty oraz ustalenia dogodnego dla Państwa terminu prezentacji
WSPÓŁPRACUJEMY Z NAJEPSZYMI FIRMAMI NA RYNKU


















